[email protected]


Logo
Bli medlem
Macron klubbshop

Rota stadion utbygges!

Forfatter: Preben Meberg

07. november 2025

Fotball
News article image

Rota stadion utbygges!

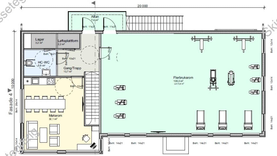
Fotballsesongen på banen er over, men det skjer ting i kulissene. Mandags kveld presenterte fotballgruppa, med Jan Petter Meberg i spissen, noen helt spesielle planer for 2026. Rota stadion får et helt nytt og flott aktivitetsbygg! Et bygg som byr på nye garderober, kiosk, mingleområde, møterom og et stort og flott aktivitets-/styrkerom.

Custom image

Som en forlengelse av garasjebygget og nye-tribunen, og dermed også kiosken nærmere tribunen, vil dette være med å bidra til et enda bedre samlingspunkt under hjemmekamper, også ifm. trening og sammenkomster gjennom hele uken. Vi håper at vi gjennom dette tiltaket gir øya et nytt møtested der vi i enda større grad kan sosialisere oss, og møte naboer og kjente.

Aktivitetsbygget vil også gi de mest ivrige muligheten til å få trent alternativt/styrke på stadion. Dette vil også gi de spillerne som er skadet anledning til å trene alternativt under lagtreninger. Vi håper også at dette tilbudet kan friste andre enn bare egne medlemmer, og at folk som ønsker litt individuell trening kan få et treningstilbud i klubben.

Byggearbeidet vil, dersom byggesøknaden går gjennom uten feil og mangler, etter planen starte opp sommeren 2026. Pr i dag består gruppen som jobber med prosjektet av Robin Rørseth, Adrian Rørseth, Arnt Erik Blindheimsvik og Jan Petter Meberg.

«Gamle klubbhuset» vil ellers fortsette å være samlingsplassen ved større interne arrangementer, og utleie til diverse selskap. Eksisterende garderober vil bli brukt som omkledningsrom, dommergarderober og lager.

Under kan man se mer dataljerte bilder av det planlagte bygget!

Dette blir meget bra!

Custom image
Custom image
Custom image
Custom image